Реклама
Главная
Новости
Новости по-старому
Новости по категориям
Власть
Общество
Культура
Медицина
Образование
Спорт
Благоустройство
Коммунальная сфера
Экономика и бизнес
Правопорядок
Происшествия
Из жизни
Непознанное
В регионе, в стране
Оперативная информация
Статьи
Каталог фирм
Яндекс.Погода



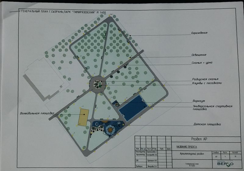
У общественников затеплилась надежда, что в городе появится еще один благоустроенный парк


Тимирязевский парк в Сызрани без всякого преувеличения можно назвать многострадальным. За свою более 100-летнюю историю он пережил разные периоды. Многие сызранцы помнят его как процветающую территорию культурного отдыха. Затем он снискал себе славу места бандитских разборок. А с начала нулевых пришел в полное запустение. И только, благодаря стойкости энтузиастов из местных жителей, он все еще существует, а не вырублен и выкорчеван под ненужный в районе детский сад, да еще рядом с наркологичкой. Статус зеленой зоны парку вернуть удалось, но вот с дальнейшим его благоустройством дело долгое время никак не могло сдвинуться с мертвой точки. Для того, чтобы призвать коммунальщиков скосить траву и срубить поросль, и то приходилось биться.

Летом прошлого года в Комитете ЖКХ «прикинули», как можно облагородить парк: на месте все осмотрели, замерили, составили ориентировочный план благоустройства, обсудили его с общественниками. Прошел еще год, и только недавно затеплилась надежда, что парк будет благоустроен. Не в этом году, и, возможно, даже не в будущем, но некоторые обстоятельства обнадеживают, что в КЖКХ всерьез решили заняться благоустройством Тимирязевского.

А надежду в общественников вселило привлечение к разработке проекта по благоустройству архитекторов ООО «Берсо», компании, которая в настоящее время обустраивает Монастырскую набережную. 22 сентября в парке состоялась встреча, на которой присутствовали представители Комитета ЖКХ, ООО «Берсо» и общественники. Обсудили предложенный архитекторами проект генерального плана по благоустройству, возможные программы, благодаря которым он может быть реализован. Наметили первостепенные действия относительно того, что делать дальше.

«Приятно осознавать, что что-то происходит, что есть практически готовый проект, приблизительная смета, а после встречи архитекторы просчитают уже конкретную сумму, необходимую для проведения работ. Это уже хорошее начало, - поделились своим мнением общественники. - Есть цель, есть конкретное направление, куда двигаться дальше. Встреча дала не только надежду, но и некоторую уверенность, что проект будет реализован».




30 Сентябрь 2022, 19:59 /


Подписывайтесь на наш Телеграм-канал, блог в Дзен и MAX
Читайте нас в Новости и Google.Новости

Читайте еще новости раздела Благоустройство:

2026.02.

Если вы заметили опечатку, выделите часть текста с ней и нажмите Ctrl+Enter. Спасибо!
Пожалуйста, выделяйте фразу с опечаткой, а не только одно неверно написанное слово.



БЫСТРЫЙ ПЕРЕХОД:

КОНТАКТЫ ПОРТАЛА
маленькая Сызрань:


webmaster@syzran-small.ru
телефон редакции 8-903-303-17-02
условия размещения рекламы

Свидетельство о регистрации СМИ:
ЭЛ № ФС 77-87116 от 22.04.2024
выходные данные СМИ
Условия использования материалов

СТАТИСТИКА:

Яндекс.Метрика   


Генерация страницы: 0.015 с.
Всего 4 запроса к базе.


© 2005-2026
Размер шрифта:
Цветовая схема:
Изображения: